11 ESD Testers
Zero Charge™ ESD Testers       Inquiries and questions: e-mail: ESDmeters@ESDmeters.com

Extremely easy to use. Just press and hold the button at the center of the meter. The meter automatically tests each foot and the wrist strap as you hold the button. You no longer need to remember to change the position of any additional switches from one measurement to the next (which is the case with other manufacturers units).

ASFF-9_fr.jpg A-400.jpg A-STAT Check 289 m.jpg
ASFF-9
Free Standing, One Touch Wrist Strap and Dual Footwear Tester
AWFF-9
Wall mounted, One Touch Wrist Strap and Dual Footwear Test Station

A-400
Surface Resistivity, Surface to groundand point to point resistivity meter

A-Stat Check 289
Basic , indispensable Field Meter

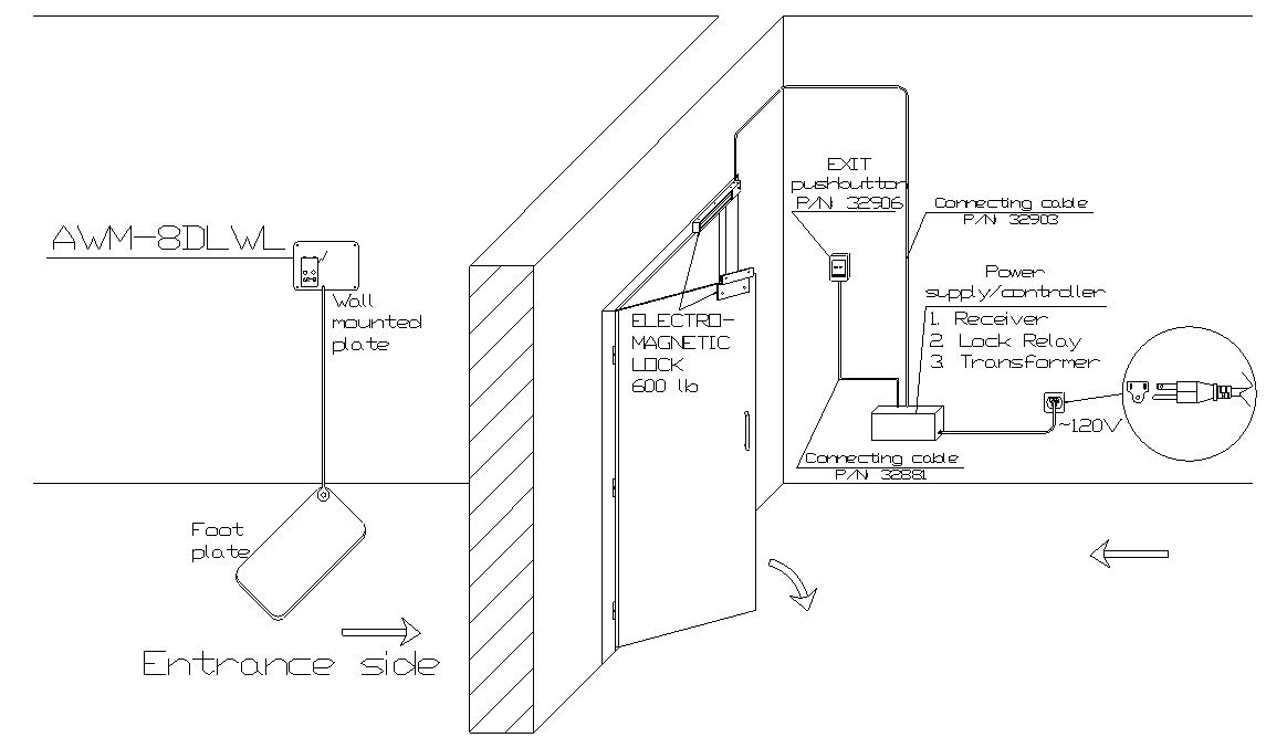
 AWM-8DLWL-KIT

ZeroCharge.jpg                                                                           

A Wall Mounted Wrist Strap and a Footwear Tester with a wireless transmitter and a hardware set to install Magnetic Door Lock to ESD protected areas.

Description:

A microprocessor controlled test station with a complete set of hardware and a built-in wireless transmitter for quick and easy installation
to open a magnetic Door Lock to an ESD protected area  for persons who have passed the ESD safety test.

     The AR-8DLWL-A Control Unit has a built-in wireless transmitter to open a Magnetic Door Lock supplied with the system.  

     The AR-8DLWL control unit can be pre-programmed to open the door lock  in one of three possible modes of operation:

1. Testing only Wrist Straps
2. Testing only Heel Straps
3. Testing both, Wrist and Heel Straps

Only after a positive test the wireless transmitter will send the signal to a receiver
(supplied with AR-8DLWL-A KIT) to de-activate magnetic door lock for a pre-set
by the user time sufficient to open the door and enter ESD protected area.                                                                                                                                                                                                                                                                                

AWM-8.jpg

AWM-8DLWL Wrist  Strap and  Footwear Tester with a wireless transmitter                                                 

AWM-8DLWL.jpg

Note:

The complete system includes everything needed (as shown on the picture above) to be installed on the door to be controlled. Your technician should be able to install the system in no longer then  few hours. All what is needed is an AC outlet near the door, a hand drill and a screwdriver. 

"Compliance verification should be performed prior to each use (daily, shift change, etc.). The accumulation of insulative materials may increase the foot grounder system resistance. If foot grounders are worn outside the ESD protected area testing for functionality before reentry to the ESD protected area should be considered." (ESD SP9.2 APPENDIX B - Foot Grounder Usage Guidance)

Interested Companies to distribute these products in their countries are welcome
to contact: czes@bokar.com or call USA at (570) 842-2812
TO BUY please see Distributor
in Your Country

Superior Iron | surfaceresistivitymeter | Tweezers | Wrist Straps